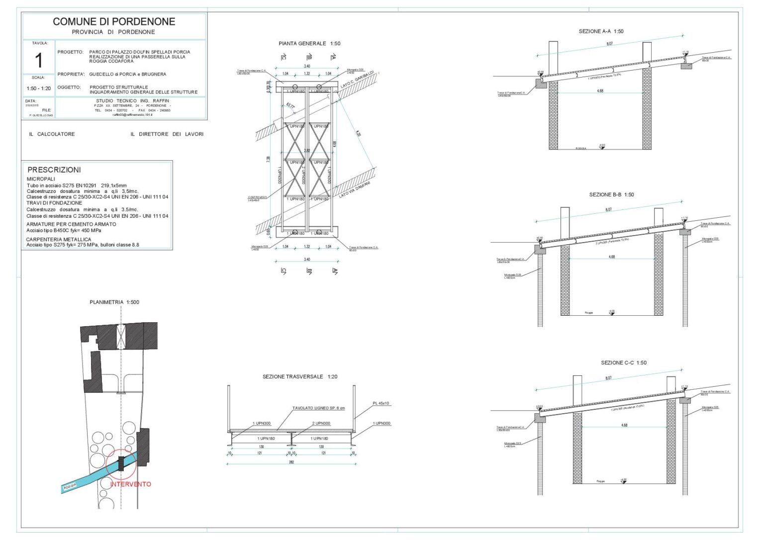
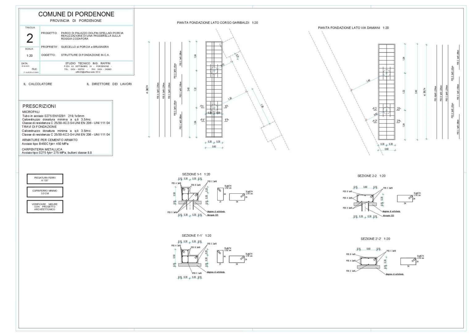
PASSERELLA PEDONALE presso il Parco Porcia, Pordenone

NUOVE COSTRUZIONI

In collaborazione con l’arch. Marco Grandesso.
Immagini di cantiere.

Richiedi una consulenza

"*" indica i campi obbligatori